ImmobilienMarkt Österreich

Immobilien Markt

Häuser, Wohnungen, Grundstücke und Gewerbeimmobilien

Eigentumswohnung in 7000 Eisenstadt

Wohnfläche: 71 m²

„GEMEINSAM statt Einsam !!“ - Wohnungen für alle im besten Alter ab 50 +  Diese kleine Wohnhausanlage mit 6 Wohnungen bietet den Bewohnern ein optimales, seniorengerechtes Wohnumfeld in grüner Lage mit guter Infrastruktur - einfach beste ...

Wohnung in Eisenstadt

Gemeinsam statt Einsam! Generation 50+ / Grünruhelage / 3 Zimmer mit Balkon und Garage! (Top 4 - 2.OG - 71 m² ) - „GEMEINSAM statt Einsam !!“ - Wohnungen für alle im besten Alter ab 50 + 
Diese kleine Wohnhausanlage mit 6 Wohnungen bietet den Bewohnern ein optimales, seniorengerechtes Wohnumfeld in grüner Lage mit guter Infrastruktur - einfach beste Lebensqualität!
 
Gemeinsames aber doch eigenständiges Wohnen unter Gleichgesinnten
Individuelle Betreuungsmöglichkeit durch  Rotes Kreuz möglich
Appartement für eventuell später benötigte 24h Betreuung
Notrufsystem
Raum für Frisör-Fußpflege-Massage, Dampfkammer, Infrarotkabine,
Sportraum mit Tischtennis, + Sitzergometer, Rudergerät, Laufband..
Gemeinschaftsraum für gemeinsame Feiern, Kartenspiele, Basteln usw..
Gartenfläche zum Selbstanbau im Gemeinschaftsgarten
PKW-Einzelgaragen im Untergeschoß
Waldrand,- Ruhelage und Grün,- Fernblick
Bezug nach Vereinbarung ca. Ende 2026
 Objektbeschreibung   
          
 6 Wohneinheiten mit Garten, überdachtem Balkon (1.Wohngeschoss)  oder Terrasse (2. Wohngeschoss) und Gemeinschaftsgarten
                    Ausstattung Schlüsselfertig, ausgenommen Küche
                    Plasmathermen Heizung - neueste Technik, energieeffizient und kostensparend
                    Gästeparkplatz - je Wohneinheit 2 Stellplätze vorgesehen
                    Zuzüglich 1 PKW Garagenplatz obligat, Kaufpreis: €16.000,-
                                   
Fertigstellung vorr. Ende 2026 -  Beziehbar nach Vereinbarung
Profitieren Sie so von der Möglichkeit der Mitgestaltung Ihres Wohndomizils !- Sonderwünsche sind gegen Aufzahlung möglich.
 
!! Mit guter Rendite auch als ANLEGERWOHNUNG !! geeignet. 
 
Wohnungsbeschreibung
 
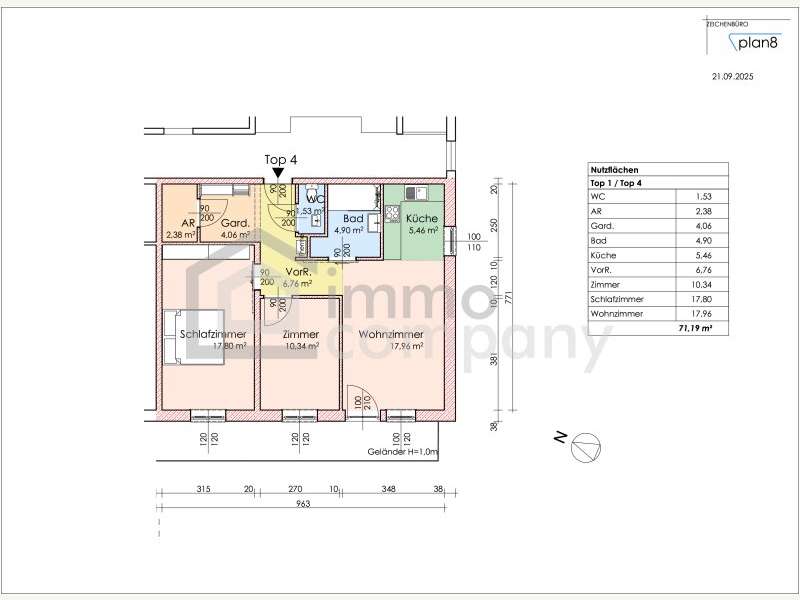
Wohnung Top 4 / 2. Wohngeschoss:

Die Wohnung mit 71,19 m² und einem Balkon (Ausrichtung Südwest) verfügt über folgende Raumaufteilung:

* Vorraum: 6,76 m²
* Küche: 5,46 m²
* Abstellraum: 2,38 m²
* Wohnzimmer: 17,96 m²
* Schlafzimmer: 17,80 m²
* Zimmer: 10,34 m²
* Bad: 4,90 m²
* WC: 1,53 m²
* Balkon: 13,00 m²

zusätzlich im Erdgeschoss: 

* Kellerabteil: 6,40 m²
* Garage (optional): 15,66 m²

Der Kaufpreis ohne Garage beläuft sich auf 314.500.- € für den Endnutzer.
Der Anlegerkaufpreis beläuft sich auf 251.600.- € netto zzgl. 20% USt. 
 
Lage
Die Stadt liegt am Fuße des Leithagebirges und ist die kleinste Landeshauptstadt in Österreich. Eisenstadt ist eine wachsende Stadt mit hoher Lebensqualität. 
Die 14.000-Einwohner-Stadt verfügt über eine moderne und leistungsfähige Infrastruktur, ein vielfältiges kulturelles Angebot, zahlreiche Freizeiteinrichtungen und beste ökologische Bedingungen.
Besonders für die goldene Generation hat die burgenländische Landeshauptstadt einiges zu bieten. Um die Belange der Senioren vertreten zu können, wurde der Seniorenbeirat gegründet.
 
Aktivitäten:
Die burgenländische Landeshauptstadt bietet ein breitgefächertes Freizeitprogramm. Sportbegeisterte fühlen sich im Allsportzentrum, im Freibad oder auf einer der zahlreichen Lauf,- Spazier und Radwege oder dem Wandererlebnispfad in der Natur heimisch.
Kulturell bietet die Stadt zahlreiche interessante Museen & Galerien mit teilweise wechselnden Ausstellungen.
 
Verkehrsanbindung:
Die Busstation erreichen Sie in nur ca. 1 - 2 Gehminuten.
Buslinie 277: Eisenstadt - Mannersdorf - Bruck a. d. Leitha
Buslinie 235: Ebreichsdorf - Leithaprodersorf - Eisenstadt
 
Mit dem PKW sind Sie:
- in ca. 5 Minuten mit dem Auto Zentrum Eisenstadt
- in ca. 15 Minuten in Rust am Neusiedlersee
- in ca. 25 Minuten im Seebad Mörbisch. Mörbisch, auch bekannt auch für seine alljährlichen Seefestspiele

Mehr Informationen und Unterlagen zu diesem Projekt für Senioren sowie die Möglichkeit einer Besichtigung vor Ort ist gerne auf Anfrage möglich!
Hinweis gemäß Energieausweisvorlagegesetz: Ein Energieausweis wurde vom Eigentümer bzw. Verkäufer, nach unserer Aufklärung über die generell geltende Vorlagepflicht, sowie Aufforderung zu seiner Erstellung noch nicht vorgelegt. Daher gilt zumindest eine dem Alter und der Art des Gebäudes entsprechende Gesamtenergieeffizienz als vereinbart. Wir übernehmen keinerlei Gewähr oder Haftung für die tatsächliche Energieeffizienz der angebotenen Immobilie.
Wir weisen darauf hin, dass zwischen dem Vermittler und dem zu vermittelnden Dritten ein familiäres oder wirtschaftliches Naheverhältnis besteht.
Der Vermittler ist als Doppelmakler tätig.Nutzen Sie die einmalige Gelegenheit, diese Immobilie zu besichtigen – sehen und erleben ist sehr viel eindrucksvoller!
Eine Besichtigung ist kostenfrei und unverbindlich, und gibt Ihnen einen unverfälschten Eindruck von der Immobilie.
Gerne unterstütze ich Sie auch bei der Finanzierung sowie beim Verkauf/Vermietung Ihrer Immobilie.
Infrastruktur / EntfernungenGesundheit
Arzt <1.000m
Apotheke <1.500m
Klinik <7.500m
Krankenhaus <2.000m
Kinder & Schulen
Schule <1.000m
Kindergarten <500m
Universität <2.000m
Höhere Schule <1.500m
Nahversorgung
Supermarkt <1.500m
Bäckerei <1.500m
Einkaufszentrum <2.500m
Sonstige
Bank <1.500m
Geldautomat <1.500m
Post <1.500m
Polizei <1.500m
Verkehr
Bus <500m
Autobahnanschluss <3.500m
Bahnhof <1.500m
Angaben Entfernung Luftlinie / Quelle: OpenStreetMap
Kaufpreis: € 314.500,-
Objektnummer: 7939/2300162161 - Immobilienanzeige erstellt am 21.01.2026 zuletzt aktualisiert am 25.01.2026.

Bitte füllen Sie dieses Formular aus, um den Anbieter dieser Immobilie zu kontaktieren. Spezielle Fragen und Anliegen können Sie gleich in diesem Formular, welches via Email an den Anbieter weitergeleitet wird, stellen.

Anbieter: Immo-Company Haas & Urban Immobilien GmbH

Ich ersuche um: Rückruf   Besichtigung Weitere Informationen.

Weitere Objekte von Immo-Company Haas & Urban Immobilien GmbH
ImmobilienMarkt Hauptseite

Weitere aktuelle Immobilienangebote in dieser Region:

Immobilien Bezirk Eisenstadt (Stadt) Wohnung kaufen Eisenstadt Immobilien in Eisenstadt

Immobiliensuche
Kauf Miete 

Preissortiert

Immobilien Immobilie
Copyright © 2026 immobilienmarkt-at.at